在香港要成功開展一門生意,申請商業登記證是必不可少的步驟。這不僅是法律的要求,也是您合法經營的基礎。本文將深入探討如何高效地完成此步驟。 申請商業登記證的流程 申請商業登記證的過程,雖然看似繁瑣,但只要掌握正確的流程,您就能輕鬆應對。以下是申請過程的關鍵步驟: 填寫商業登記申請表格: 您需要準備正確的表格,確保填寫準確無誤。 準備所需文件: 例如公司註冊證書、公司章程等。 提交文件: 將填好的表格及所需文件提交至公司註冊處。 支付商業登記費: 您需按規定支付相應的商業登記費用。 等待批核: 一般需等待數天,成功後即可獲得商業登記證。 申請商業登記證的重要性 合法經營:獲取商業登記證是合法運營的必要條件。 信譽保證:持有商業登記證有助於提升公司的信譽。 法律保障:確保您的商業活動受到法律的保護。 要高效地完成申請商業登記證的流程,尋求專業的協助是明智之舉。專業服務機構具有豐富的經驗,能夠協助您避開常見的錯誤,確保申請順利進行。 常見問題 (FAQs) Q1: 申請商業登記證需要多長時間? A1: 一般來說,從提交申請到收到商業登記證大約需要5到7個工作日。 Q2: 申請商業登記證需要多少費用? A2: 費用根據公司的營業性質和規模而定,一般在數百到數千港元之間。 Q3: 可以在線申請商業登記證嗎? A3: 是的,香港公司註冊處提供線上申請服務,簡化了申請流程。 希望本文能夠幫助您更好地理解和完成申請商業登記證的流程,確保您的業務能夠迅速啟動並合法運營。
Unveiling the Hidden Potential of Your Business
In today’s competitive market, businesses are constantly seeking ways to expand and enhance their operations. Achieving sustainable Business Growth requires a combination of innovative strategies and efficient execution. The Role of Strategic Planning Effective Strategic Planning is the cornerstone of any successful enterprise. It involves setting clear goals, understanding market dynamics, and developing a roadmap […]
深入探討香港商業登記流程的秘訣
什麼是商業登記證? 在香港,商業登記證是企業合法運營的基本證明。所有在香港經營的企業都必須持有有效的商業登記證,以符合法律規定。 如何申請商業登記 要成功申請商業登記,需要遵循以下步驟: 準備所需文件:公司註冊證書、董事身份證明等。 填寫並提交表格:到稅務局遞交申請表格IRBR200。 繳納相關費用:按照公司類型支付相應的費用。 等待審批:一般需時1-2個工作日。 領取商業登記證:審批通過後,可領取證書。 注意事項 確保提交的信息準確無誤。 按時續期,避免罰款。 如有變更,需及時更新登記信息。 常見問題解答 問:商業登記證的有效期是多長? 答:通常為一至三年,需在到期前續期。 問:未持有商業登記證會有什麼後果? 答:可能會面臨罰款,甚至法律訴訟。 如需協助或更多資訊,請訪問申請商業登記證了解詳情。
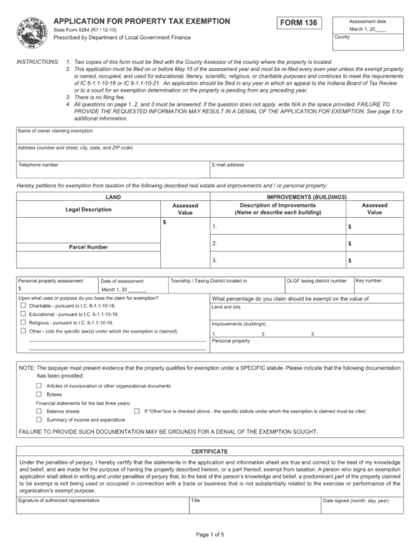
深入探討:全面瞭解稅務豁免的細節與應用
在現代社會,合理運用稅務豁免可以為個人和企業節省大量的稅款。然而,如何正確理解和應用這些法律條款卻需要一定的知識和技巧。本文將詳細介紹稅務豁免的基本概念、常見的類型以及申請方式。 什麼是稅務豁免? 稅務豁免是指根據法律規定,在特定條件下可以免除部分或全部稅款的政策。這些條件可能涉及個人收入水平、家庭狀況、企業類型等多種因素。 稅務豁免的類型 稅務豁免一般分為若干類型,每種類型的適用範圍和條件各不相同。以下是幾個常見類型: 收入豁免:針對低收入家庭或個人,部分稅款可以被豁免。 教育豁免:涉及學費、書籍等教育相關費用的豁免。 慈善捐贈豁免:針對個人或企業捐贈給慈善機構的款項,可以申請稅務豁免。 公司稅務豁免:針對特定行業或新創企業,政府可能提供若干年的稅務豁免。 如何申請稅務豁免 如果你符合稅務豁免的條件,那麼申請變得尤為重要。這不僅需要了解相關法律條文,還需準備各種必備資料。 Read more about 免稅額 here. 申請步驟 評估資格:首先,確認自己是否符合稅務豁免的條件。 收集資料:準備所有必要的文件和證明材料,如收入證明、捐款收據等。 填寫申請表:確保所有信息填寫準確無誤。 提交申請:按照政府或相關機構的要求,提交稅務豁免申請。 等待審核:申請送出後,一般需要等待一定的時間進行審核,最後才能獲得批覆。 常見問題解答 什麼收入水平可以申請收入豁免? 這取決於所在國家或地區的法律規定,一般來說,低於某個收入門檻的人群可以申請。 教育豁免需要哪些資料? 通常需要提供學校錄取通知書、學費收據、書籍購買憑證等。 公司如何申請稅務豁免? 企業需要提供營業執照、稅務登記證等相關證明,並填寫專門的申請表格。不同國家的政策可能有所不同,具體要求建議諮詢當地稅務機構。 瞭解和善用稅務豁免,不僅能夠大幅減少稅務負擔,還能夠將更多資金投入更有價值的用途。希望這篇文章能夠為你在稅務豁免方面提供有益的指導。
揭開香港秘書公司服務的神秘面紗
在現代商業環境中,香港秘書公司扮演著不可或缺的角色。這些公司不僅為企業提供專業的行政支持,還有助於企業在激烈的市場競爭中脫穎而出。本文將深入探討香港秘書公司的各項服務及其重要性。 什麼是香港秘書公司? 香港秘書公司是一類專門提供商業行政和支援服務的企業,主要服務包括公司註冊、法律合規、財務管理等。這些服務對於無法自行處理複雜行政事務的小企業尤為重要。 香港秘書公司提供的主要服務 公司註冊:協助新公司快速合法地在香港成立,包括起草公司章程、文件提交等。 法定秘書:確保企業遵守香港法律規定,提供法定秘書服務。 財務管理:提供包括會計、稅務申報在內的全面財務管理服務。 虛擬辦公室:提供虛擬辦公室地址和電話接聽服務,提升企業的專業形象。 年度申報:協助企業完成各類年度申報文件,確保企業合法運營。 選擇香港秘書公司的好處 使用香港秘書公司的服務不僅能夠減輕企業負擔,還能提高工作效率。以下是選擇香港秘書公司的一些主要好處: 專業知識:秘書公司員工具備豐富的專業知識,能夠處理各類複雜的行政事務。 時間節省:讓專業人士處理繁瑣的行政工作,企業可以將更多時間投入到核心業務。 法律合規:秘書公司確保企業遵循最新的法律法規,避免可能的法律風險。 Read more about 公司秘書服務收費 here. 成本效益:相比於自行聘請專業人員,使用秘書公司服務通常更具成本效益。 常見問題解答 (FAQs) 什麼類型的企業適合使用秘書公司服務? 無論是小型初創企業還是大型跨國公司,都可以受益於香港秘書公司提供的專業服務。 秘書公司如何幫助企業年度申報? 秘書公司會提醒企業年度申報的截止日期並協助準備和提交所有必要文件,確保企業符合法規要求。 使用秘書公司服務的費用高嗎? 費用取決於所需服務的類型和範圍,一般來說,使用秘書公司比自行聘請專業人員要更具經濟效益。 綜合來看,香港秘書公司的專業服務不僅能提升企業的運營效率,還能確保其合法合規。這是一個值得考慮的商業決策,無論是對於新創企業,還是已經成熟的公司。
探索企業背後的無名英雄
在現今競爭激烈的商業環境中,企業往往需要專注於其核心業務,以取得成功。然而,許多繁瑣的行政工作卻會佔去大量時間和資源。在這種情況下,秘書服務公司成為了許多企業的救世主。 什麼是秘書服務公司? 秘書服務公司透過提供多種行政支援服務,幫助企業集中精力於其核心競爭力。這些公司提供的服務範圍廣泛,包括文書處理、會議安排、電話接聽、資料管理等。這些服務不僅能夠減少企業的營運成本,還能顯著提高工作效率。 文書處理與資料管理 文書處理是秘書服務公司提供的核心業務之一。他們能夠專業地處理各種文件,從簡單的信件打字到複雜的合同編寫,樣樣在行。此外,他們還會幫助企業管理大量的資料,確保資料的安全和保密。 會議安排與電話接聽 一個成功的企業往往需要頻繁的會議來協調各部門之間的工作。秘書服務公司能夠高效地安排會議,確保每個細節都得到妥善處理。電話接聽也是秘書服務公司的一項重要業務,他們可以專業地接聽和轉接電話,確保企業不錯過任何重要信息。 秘書服務公司的優勢 選擇秘書服務公司,企業能夠享受到多重優點。首先,這些公司擁有專業的團隊,具備豐富的行政經驗。其次,聘請秘書服務公司可以節省招聘和培訓內部員工的成本。同時,這些公司還能根據企業的需求提供靈活的服務方案。 企業在選擇秘書服務公司時,應該考慮公司的服務範圍、專業程度以及價格等因素。通過選擇合適的秘書服務公司,企業能夠專心於其核心業務,提升市場競爭力,實現長遠的發展目標。 Read more about 秘書服務公司 here.
在香港創辦公司的獨特優勢與流程指南
香港作為全球重要的金融中心之一,以其營商環境的自由、透明和法治聞名,吸引了大量的國際企業和創業者。在開設公司過程中,了解香港特有的優勢和所需步驟,將大大提高創業成功率。 選擇在香港開公司的優勢 香港的經濟實力和商業環境具有多方面的優勢: 低稅率:香港擁有全球最低的稅率之一,企業所得稅率僅為16.5%。 貿易自由:香港是全球最自由的經濟體之一,進出口非常便利。 法治健全:香港的法律制度透明、公正,企業權益能夠得到良好的保障。 金融市場發達:香港作為亞洲主要金融中心,融資渠道多樣且方便。 創辦公司所需的步驟 1. 公司名稱查核及註冊 在註冊公司前,需先在公司註冊處進行名稱查核,以確保公司名稱的唯一性和合法性。 2. 提交公司註冊申請 需準備並提交相關文件,包括公司章程、註冊申請表格及各董事和股東的身份證明文件。 3. 繳交註冊費用 根據公司類型和規模不同,需繳交相應的註冊費用。 4. 獲取公司註冊證書 在文件審批通過後,會頒發公司註冊證書,標誌著公司正式成立。 5. 開立銀行賬戶 公司註冊完成後,需要在香港本地銀行開立公司賬戶,以便日常營運和財務管理。 常見問題解答 (FAQs) Q1: 在香港開設公司需要多少資本? 創辦香港公司對最低註冊資本無特定要求,但建議資本金至少為1港元。 Read more about 開有限公司 here. Q2: 外國人可以全權擁有香港公司嗎? 可以。香港允許外國人獨資設立公司,並享有與本地居民相同的權利。 Q3: 註冊公司耗時多久? 通常情況下,完成公司註冊和獲取營業執照大約需要5-7個工作日。 香港以其獨特的商業優勢,吸引了全球各地的企業和創業者。在充分了解法律法規和所需流程的基礎上,開設公司將變得更為順利和成功。
打造成功企業:從零開始的公司設立指南
設立公司是一個許多人夢寐以求的夢想,但實現這個夢想需要清晰的規劃和堅定的決心。在這篇文章中,我們將探討如何設立公司,並提供一些關鍵步驟和建議,使這個過程更加簡單明瞭。 1. 商業計劃書的撰寫 在開始任何實際操作之前,首要任務是撰寫一份詳細的商業計劃書。這份計劃書應當包括公司的核心理念、目標市場、競爭分析及財務預測。撰寫這份計劃書有助於明確公司的發展方向,並為未來的投資者展示公司的可行性。 關鍵要素 公司的使命與願景 市場分析和目標客戶 產品或服務的獨特賣點 營銷策略 財務計劃 2. 法律結構與名稱注冊 選擇公司結構是設立公司的另一步關鍵步驟。不同的法律結構,例如獨資經營、合夥企業、有限責任公司等,會影響您的法律責任與納稅方式。接下來,您需要為公司選擇一個獨特且有意義的名稱,並在政府機關進行名稱注冊。 步驟 選擇適合的公司結構 檢查名稱是否重複 提交名稱申請並完成註冊 3. 取得必要的許可與執照 不同的行業和地區可能需要特定的營業執照或許可才可以合法運營。因此,了解並申辦所需的所有許可和執照是至關重要的。 重要許可證 營業執照 行業特定許可證 稅務登記證 4. 開設公司銀行賬戶 為了使財務管理更加有序且專業,您需要開設一個公司銀行賬戶。這不僅可以幫助您追蹤公司財務狀況,還可以為公司樹立專業形象。 開戶準備 公司註冊文件 Read more about 開公司 here. 法人身份證明 營業執照 5. 著手運營並持續改進 一旦完成了前述步驟,您的公司已經具備了基本運營的條件。接下來,重點是投入實際業務的推展,並且不斷進行市場調研及內部管理的改進,確保公司在競爭中保持優勢。 設立公司是一個充滿挑戰但也富有成就感的過程。透過正確的規劃和靈活的應對策略,您可以成功打造一個穩健而繁榮的企業。
Discover Your Path with Innovative Solopreneur Ideas
In today’s fast-paced world, embarking on the solo journey of entrepreneurship is an increasingly attractive option. Whether you’re escaping the 9-to-5 grind or aiming to leverage a unique skill set, exploring Solopreneur ideas can set you on a fulfilling, successful path. Here, we uncover diverse and promising avenues for aspiring solo business owners. Unleashing Creativity: […]
Unveiling the Importance of Business Reputation in Today’s Market
In the fast-paced world of business, building and maintaining a strong business reputation can be the difference between success and failure. The reputation of a company is the perception that the general public, clients, and employees have about its values, products, and services. It is a crucial asset that can influence customers’ buying decisions and […]
